Salvando ...

Ops!

Vendo apartamento em Piratuba , Santa Catarina no bairro Balneário

Código do imóvel: C0672

88m²
2 quartos
1 banheiro
1 vaga
Comprar por R$ 690.000,00

Descrição

APARTAMENTO | À VENDA | PIRATUBA/SC

Ref.: C0672

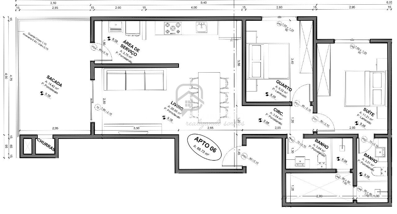
Apartamento na Planta, em Piratuba/SC

No Edifício Nova Canaã, este amplo apartamento dispõe de Área Privativa de 88,73m2

Sala de Estar e Jantar;
Copa e Cozinha;
Sacada com Churrasqueira;
Área de Serviço;
Suíte + 1 Dormitório;
Banho Social e;
1 Vaga de Garagem Privativa.

O Edifício conta com:
Portões e Porteiro Eletrônicos;
2 Elevadores;
Gás Central com Medidores Individuais;
Tubulação de Água Quente e Fria

Agende Seu Atendimento com Um de Nossos Especialistas!
WhatsApp: (49) 9 9998-9522
Fixo: (49) 3555-2474

Imóveis Brunetto® - CRECI 6105J
Realizando Sonhos

Rua: Luiz Dorini, 204, Centro, Capinzal-SC

As informações estão sujeitas a alterações. Consulte o corretor responsável.


Informações sobre o condomínio

Edifício residencial/comercial com 03 andares de garagens, área comercial com 15 salas e apartamentos de 01, 02 e 03 dormitórios.
Áreas conjugadas;
Portão e porteiro eletrônico;
Entradas técnicas de ar condicionado;
02 elevadores;
Internet, telefone e tv a cabo;
Gás central com medidor individual;
Tubulação de água quente e fria;
Sacada com churrasqueira;
Revestimento da tubulação de esgoto com manta de isolamento acústico;
Apartamentos com maior iluminação natural;
Controle tecnológico do concreto, análise de resistência em 100% do concreto utilizado;
Alta qualidade das cerâmicas e piso laminado.



Chave do anúncio: m5uE2FFQeB4waVpP

Características do Imóvel

Churrasqueira
Circuito de segurança
Condomínio fechado
Conexão com a internet
Elevador
Interfone
Área de serviço

Imóveis Brunetto

Encontre aqui os melhores imóveis da nossa imobiliária! Explore nossa seleção de casas, apartamentos e terrenos. Conte com a nossa experiência para encontrar o lar perfeito para você.

(49) 9 9829-5605
49998295605
contato@imoveisbrunetto.com.br
Ver imóveis

Gostou do imóvel? entre em contato!

Ao enviar esta mensagem, você autoriza a coleta, armazenamento, uso, recepção, acesso, processamento e arquivamento dos dados pessoais nos termos da Política de Privacidade e confirma que leu e concordou com os termos.

Enviar contato

Agende sua visita sem compromissos

Outros imóveis em Piratuba:

Venda
Imagem do anúnio: Vendo terreno / lote / condomínio em Piratuba , Santa Catarina no bairro Centro

Terreno / Lote / Condomínio em Piratuba no bairro Centro

Lote urbano Balneário de Piratuba; Terreno plano!
379 m2
R$ 199.000,00 para comprar
Temporada
Imagem do anúnio: Alugo para temporada apartamento em Piratuba , Santa Catarina no bairro Balneário

Apartamento em Piratuba no bairro Balneário

Aluga-se Apartamento - Piratuba/SC
1 garagem
Temporada
Imagem do anúnio: Alugo para temporada apartamento em Piratuba , Santa Catarina no bairro Balneário

Apartamento em Piratuba no bairro Balneário

Aluga-se Apartamento - Piratuba/SC
2 quartos - 1 garagem
Aluguel
Imagem do anúnio: Alugo kitnet em Piratuba , Santa Catarina no bairro Centro

Kitnet em Piratuba no bairro Centro

Kitnet para locação, Centro, Piratuba, SC
10 m2 - 1 quarto
R$ 1.499,00 para alugar
Venda
Imagem do anúnio: Vendo apartamento em Piratuba , Santa Catarina no bairro Centro

Apartamento em Piratuba no bairro Centro

Vende-se Apartamento - Piratuba/SC
2 quartos
R$ 380.000,00 para comprar
Venda
Imagem do anúnio: Vendo apartamento em Piratuba , Santa Catarina no bairro Balneário

Apartamento em Piratuba no bairro Balneário

Vende-se Apartamento - Piratuba/SC
Venda
Imagem do anúnio: Vendo terreno / lote / condomínio em Piratuba , Santa Catarina no bairro Village

Terreno / Lote / Condomínio em Piratuba no bairro Village

Venda Terreno / Lote Piratuba SC
493 m2
R$ 76.950,00 para comprar
Temporada
Imagem do anúnio: Alugo para temporada apartamento em Piratuba , Santa Catarina no bairro Balneário

Apartamento em Piratuba no bairro Balneário

Aluga-se Apartamento - Piratuba/SC
3 quartos - 1 garagem
Ao prosseguir, você concorda com o envio de mensagens e aceita nossa Política de Privacidade