Salvando ...

Ops!

Vendo imóvel comercial em Erval Velho , Santa Catarina no bairro Centro

Código do imóvel: 40157866

172866m²
Comprar por R$ 351.900,00

Descrição

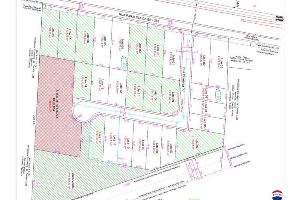
Bem vindo ao Erval Business Park, loteamento industrial.

Uma oportunidade única com 26 lotes industriais a venda, perfeitos para proprietários de empresas e investidores. Tem localização estratégica que proporciona a melhor logística para o acesso e a distribuição de cargas e mercadorias.

O Erval Business Park, é ideal para a instalação de variadas atividades industriais e também representa uma ótima opção de investimento, permitindo a construção de barracões para locação.

Completamente regularizado e licenciado, o loteamento é a escolha certa para quem busca eficiência, oportunidade e crescimento no setor industrial.

Terrenos amplos e planos 2.192,01m²

Infraestrutura completa:
Rede de distribuição de água com reservatório.
Pavimentação asfáltica
Rede de energia elétrica trifásica
Iluminação em led
Fácil acesso a BR-282
Marginal regularizada junto ao DNIT
Terrenos 100% regularizados
Passeios e acessibilidade

O Erval Business Park se destaca por sua localização, que facilita a logística de qualquer empresa. Além disso, será entregue com infraestrutura completa e 100% regularizado:

Localização privilegiada: Ás margens da BR-282, no Km 373, facilitando logística, transporte e acesso para fornecedores. Próximo de pontos estratégicos.

Diferenciais e vantagens.

Terrenos planos: O Business Park tem lotes planos e isso facilita e agiliza a instalação de qualquer empresa. Além disso, reduz o custo de terraplenagens para a preparação dos terrenos.

Energia trifásica: O loteamento será entregue com o sistema de energia trifásico, já instalado e funcionando, atendendo as normas e necessidades de operação de empresas.

Regularizado e licenciado: O Loteamento Business Park, será entregue 100% regularizado. Os terrenos tem matrículas individuais e autorização para a construção dos moveis industriais.

No Erval Business Park as possibilidades são variadas e o loteamento atende diferentes segmentos industriais.
Ideal para expandir operações de empresas, ja existentes ou para abrigar novas. Também é uma ótima opção para investidores que buscam oportunidades lucrativas no setor industrial.

Barracões ou estruturas para qualquer atividade industrial:
Metalúrgicas
Moveleira
Metal
Mecânica
Alimentos
Fabricas em geral
Centro de distribuição
Entre outras.

Lote disponível: nº 05 quadra 1

RE/MAX VIVALLE - JOAÇABA

Encontre aqui os melhores imóveis da nossa imobiliária! Explore nossa seleção de casas, apartamentos e terrenos. Conte com a nossa experiência para encontrar o lar perfeito para você.

(49) 3521-2848
(49) 9 9151-1318
49991511318
valquiriabroilo@remax.com.br
Ver imóveis

Gostou do imóvel? entre em contato!

Ao enviar esta mensagem, você autoriza a coleta, armazenamento, uso, recepção, acesso, processamento e arquivamento dos dados pessoais nos termos da Política de Privacidade e confirma que leu e concordou com os termos.

Enviar contato

Agende sua visita sem compromissos

Outros imóveis em Erval Velho:

Venda
Imagem do anúnio: Vendo terreno / lote / condomínio em Erval Velho , Santa Catarina no bairro Loteamento Ilda Cassaniga

Terreno / Lote / Condomínio em Erval Velho no bairro Loteamento Ilda Cassaniga

Vende-se Terreno / Lote - Erval Velho/SC
360 m2
R$ 95.000,00 para comprar
Venda
Imagem do anúnio: Vendo imóvel comercial em Erval Velho , Santa Catarina no bairro Centro

Imóvel Comercial em Erval Velho no bairro Centro

Vende-se Comercial - Erval Velho/SC
17287 m2
R$ 760.628,00 para comprar
Venda
Imagem do anúnio: Vendo apartamento em Erval Velho , Santa Catarina no bairro Centro

Apartamento em Erval Velho no bairro Centro

Vende-se Apartamento - Erval Velho/SC
2 quartos - 1 garagem
Venda
Imagem do anúnio: Vendo terreno / lote / condomínio em Erval Velho , Santa Catarina no bairro Distrito Industrial

Terreno / Lote / Condomínio em Erval Velho no bairro Distrito Industrial

Vende-se Terreno / Lote - Erval Velho/SC
R$ 1.800.000,00 para comprar
Venda
Imagem do anúnio: Vendo casa em Erval Velho , Santa Catarina no bairro Alague

Casa em Erval Velho no bairro Alague

Vende-se Casa - Erval Velho/SC
1 quarto
R$ 700.000,00 para comprar
Venda
Imagem do anúnio: Vendo terreno / lote / condomínio em Erval Velho , Santa Catarina no bairro Loteamento Villaggio

Terreno / Lote / Condomínio em Erval Velho no bairro Loteamento Villaggio

Vende-se Loteamento - Erval Velho/SC
R$ 89.774,00 para comprar
Venda
Imagem do anúnio: Vendo casa em Erval Velho , Santa Catarina no bairro Ilda Cassaniga

Casa em Erval Velho no bairro Ilda Cassaniga

Casa Loteamento Cassaniga
360 m2
R$ 499.000,00 para comprar
Venda
Imagem do anúnio: Vendo imóvel comercial em Erval Velho , Santa Catarina no bairro Centro

Imóvel Comercial em Erval Velho no bairro Centro

Vende-se Comercial - Erval Velho/SC
17287 m2
R$ 760.628,00 para comprar
Ao prosseguir, você concorda com o envio de mensagens e aceita nossa Política de Privacidade